The final launch of the Allmultimedia.org will take place on February 24, 2026
(shortly after the 2026 Winter Olympics).
Théveninova věta
Z Multimediaexpo.cz
Théveninova poučka o náhradním zdroji napětí tvrdí, že lze libovolně složitý lineární obvod nahradit obvodem skutečného zdroje napětí, připojeným k libovolným dvěma svorkám. Tento postup se dá aplikovat v obvodech kde je třeba spočítat pouze proud v jedné větvi obvodu.
Princip objevil Hermann von Helmholtz v roce 1853, v roce 1883 jej znovuobjevil francouzský telegrafní inženýr Léon Charles Thévenin, po němž je dnes nazýván.
Postup
- Označíme si 2 svorky
- Obvod si rozdělíme na dvě části - zátěž (prvek, větev na které chceme vypočítat tekoucí proud) a druhá část bude zbytek lineární soustavy
- Podle Theveninovy věty lze zbytek lineární soustavy nahradit skutečným zdrojem napětí. Ten je tvořen vnitřním napětím (ten určíme jako napětí naprázdno mezi svorkami) a vnitřním odporem (ten určíme jako celkový odpor lineární soustavy mezi svorkami při odpojené zátěži, když zdroje vyřadíme)
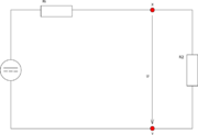
- Při výpočtu nahradíme zdroje jejich vnitřními odpory, tj. ideální zdroj napětí (IZN) zkratujeme a ideální zdroj proudu (IZP) rozpojíme. Viz obrázek.
Příklad
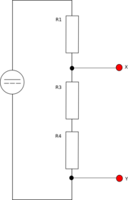
Mějme obvod u kterého chceme vypočítat proud na rezistoru R2.Viz obrázek.
Nejdříve si označíme svorky (např. X a Y) na rezistoru R2 a tento rezistor odpojíme. Tento rezistor tvoří tzv. zátěž.(Obr. 1)
V tomto obvodu bez připojeného reistoru R2 vypočítáme proud který protéká obvodem. Ten se rovná podle Ohmova zákona:
I0\( = {U \over R1 + R3 + R4} \)
Vnitřní napětí náhradního zdroje určíme jako napětí mezi svorkami X a Y. Proud I0 vytváří na jednotlivých rezistorech úbytky napětí U1, U3, U4. Ty se rovnají:
\(U1 = R1 \cdot I\)0
\(U3 = R3 \cdot I\)0
\(U4 = R4 \cdot I\)0
UXY = \(U - U1 = U3 + U4\)
Viz Kirchhoffovy zákony.
Ri = \(R1(R3 + R4) \over R1 + R3 + R4\)
I2 = \(Uxy \over Ri + R2\)
| Náklady na energie a provoz naší encyklopedie prudce vzrostly. Potřebujeme vaši podporu... Kolik ?? To je na Vás. Náš FIO účet — 2500575897 / 2010 |
|---|
| Informace o článku.
Článek je převzat z Wikipedie, otevřené encyklopedie, do které přispívají dobrovolníci z celého světa. |
